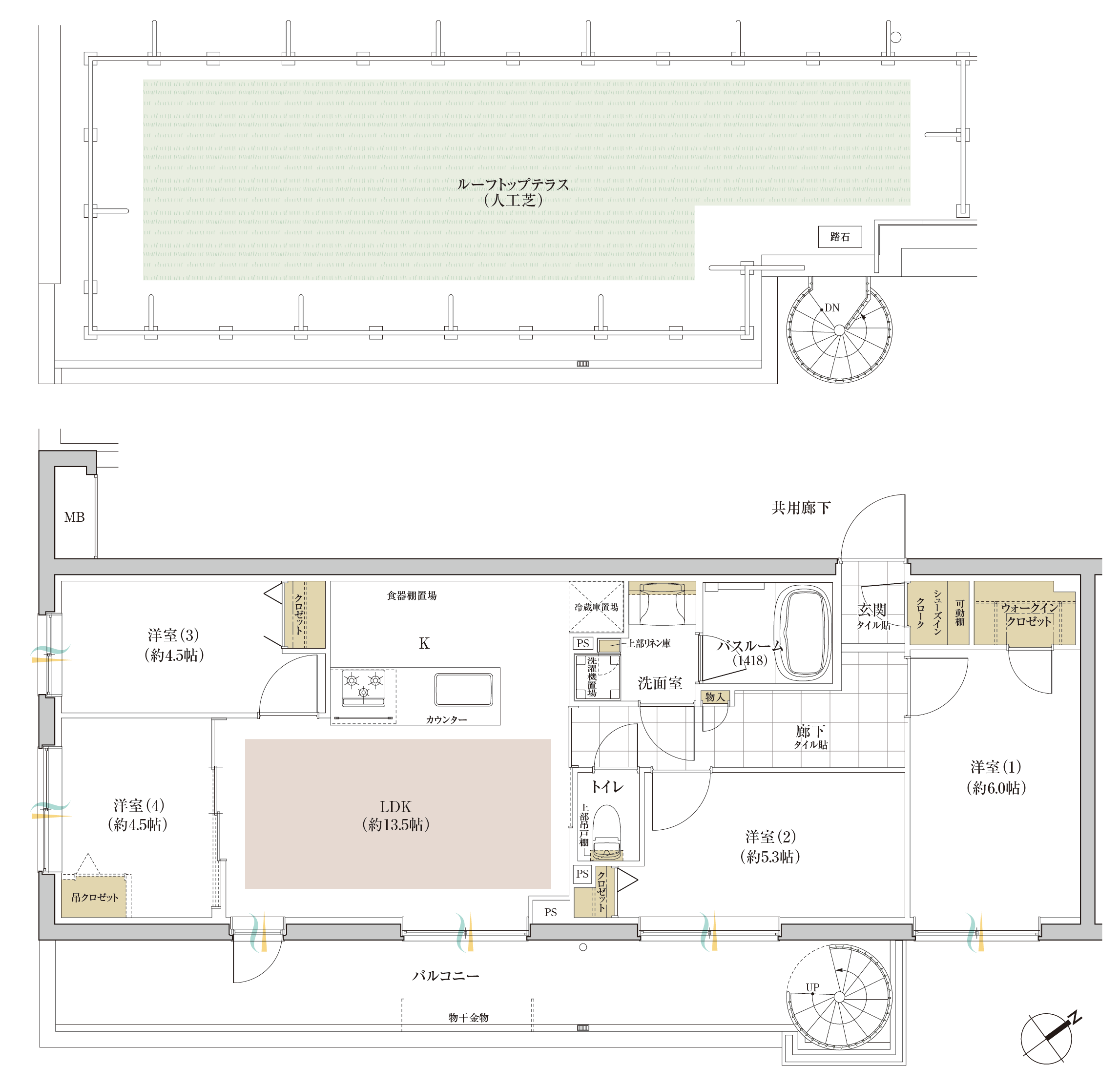
Kt type
4LDK+SIC+WIC
- 専有面積/72.87㎡(約22.04坪)
- バルコニー面積/18.07㎡(約5.46坪)
- 室外機置場面積/0.90㎡(約0.27坪)
- ルーフトップテラス面積/42.60㎡(約12.99坪)

※SIC…シューズインクローク、FR…フレキシブルルーム、WTC…ウォークスルークロゼット、WIC…ウォークインクロゼット
※掲載の間取は計画段階のもので今後変更が生じる場合があります。予めご了承下さい。

※SIC…シューズインクローク、FR…フレキシブルルーム、WTC…ウォークスルークロゼット、WIC…ウォークインクロゼット
※掲載の間取は計画段階のもので今後変更が生じる場合があります。予めご了承下さい。
